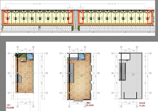
Kesempatan emas bagi anda yang ingin mengembangkan usaha seperti restoran, mini market, dll. Karena kini telah hadir Shop House atau Ruko yang terletak di area Apartemen Sentul City. Ruko 2 lantai ini hanya terdapat 31 unit untuk tipe standar dan 4 unit untuk tipe sudut (hook).
Tunggu apalagi..?? Jangan sampai kehabisan..!!!
Info lebih lanjut hubungi 087770168000.








